Контрольно-измерительные приборы обеспечивают контроль за работой систем автобуса Нефаз и двигателя, включают в себя указатели и преобразователи (датчики).
Все указатели установлены на панели приборов в кабине водителя. Преобразователи установлены на агрегатах шасси двигателя.
Электрический спидометр
Электрический спидометр состоит из трех сборочных единиц — преобразователя, который обеспечивает подачу сигналов на приемник, приемника (трехфазного синхронного двигателя с возбуждением от постоянных магнитов) и магнитоиндукционного механизма спидометра со счетным узлом.
Приемник конструктивно объединен с магнитоиндукционным механизмом в один прибор — указатель спидометра.
Конструкция и схема спидометра приведены на Рисунке 205 — Указатель спидометра и Рисунке 204 — Принципиальная схема спидометра.

Рисунок 204 —
Принципиальная схема спидометра

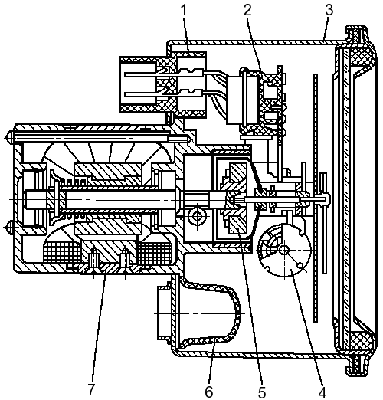
Рисунок 205 —
Указатель спидометра
1 — гнездо контактного разъема; 2 — печатная плата с
полупроводниковыми элементами; 3 — корпус указателя; 4 — счетный узел; 5 —
магнитоиндукционный механизм; 6 — гнездо сигнализатора; 7 —
электродвигатель
Электронный тахометр
Электронный тахометр состоит из магнитоэлектрического указателя и счетчика импульсов на полупроводниковых элементах, объединенных в одном корпусе. Импульсы на вход счетчика поступают с фазы генератора.
Ниже приведен Рисунок 206 — Принципиальная электрическая схема электронного тахометра.

Рисунок
206 — Принципиальная электрическая схема электронного тахометра
I — к
выключателю освещения контрольных приборов; II, IV — к корпусу автобуса; III — к
фазе генератора; C1 - С4 — конденсаторы; R1 - R13 — резисторы; VI, V8 —
стабилитроны; V2, V5, V7 — транзисторы; V3, V4, Кб — диоды; Е1 — лампы
А24-1
Электронный тахограф
Электронный тахограф «Kienzle» (Германия) марки 1318-27 устанавливается на щитке приборов и предназначен для индикации и регистрации эксплуатационных параметров автобуса: скорости движения автобуса, частоты вращения коленчатого вала двигателя, времени в часах и минутах, пройденного пути, превышения заданной скорости движения.
Тахограф работает в комплекте с преобразователем скорости, установленным на коробке передач. Места соединений кабелей с тахографом и преобразователями, крышки адаптеров на преобразователях и места установок преобразователей должны быть запломбированы.






